Top 10 Ideal Spaces of Units in Midtown New Capital
Midtown New Capital is one of the unique residential projects of Better Home Group It is the first residential and commercial compound in the New Administrative Capital. It is characterized by a high-end engineering design according to the...
Subject Midtown New Capital Compound Better Home New Capital CompoundsMidtown New Capital
Midtown New Capital is one of the unique residential projects of Better Home Group It is the first residential and commercial compound in the New Administrative Capital. It is characterized by a high-end engineering design according to the latest engineering standards. The level of urban has changed throughout this project which led to a change of lifestyle to the new thought within the New Capital. Midtown Better Home is a luxury compound. It is a villa compound and features a variety of architectural designs. Midtown New Capital has integrated facilities and services that cater to the needs of the population. It has also a dynamic location in the heart of the New Capital in the low-density residential neighborhood and for details click here Egypt Real Estate.
Find out the Properties for sale in New Capital City
Midtown Better Home Location

Geographical location: Midtown New Capital is located in the 7th residential neighborhood R7 adjacent to the eighth residential district in front of Expo City. The compound is also very close to the most important areas and vital areas such as:
-
Close to the Green River, the largest central park in the world, and close to the Opera House, Al Fattah Al Alim Mosque and the largest cathedral in the world.
-
The Medical City and the Capital International Airport.
-
The Presidential Palace and the Diplomatic Quarter.
-
The compound is close to Al Masa Hotel, the Ministries district, International Banks and Al Sefarat Neighbourhood.
For More information about the best New Capital compounds
Services and features of Midtown Administrative Capital
-
Large areas of the project have been allocated for green spaces and services to provide psychological comfort and tranquility to customers.
-
A variety of swimming pools, including regular and covered pools.
-
Security and guarding around the clock and electronic gates and surveillance cameras
-
A special garage under each building inside the Compound to prevent crowding
-
Gym and Spa including the latest international devices.
-
You will enjoy an atmosphere of sophistication and excellence.
-
There are many important services that will make you do not need to get out of the compound like schools, hospitals, nurseries and a huge shopping center.
-
Modern luxury designs for the facades and entrances of the compound.
-
You will enjoy the beauty of nature and tranquility and live in a very high atmosphere of luxury that you dream of far from the crowding of Cairo.
-
As an integrated residential community, Midtown New Capital is not just an ordinary compound; it gives you peace and psychological comfort to meet all your needs.
Browse Now Apartments for sale in New Capital City
The Executing Company and Its Previous Projects
Midtown New Capital Compound Better Home
The compound was implemented by Better Home Group, one of the leading real estate investment companies in the Egyptian market, which has precedents in many outstanding projects. Better Home Group was one of the first companies to launch real estate projects in the new administrative capital, was established in 1998 and has worked in many fields of investment and has moved to the real estate sector. The latest projects of Better Home Group are:
- Midtown Solo New Cairo.
- Cairo Business Park project
- Highland Compound in 6th of October.
- Highland New Cairo
- Cityscape Mall 6th of October.
- New Menya Mall.
Choose Your Dream Home Easily Villas for sale in New Capital City
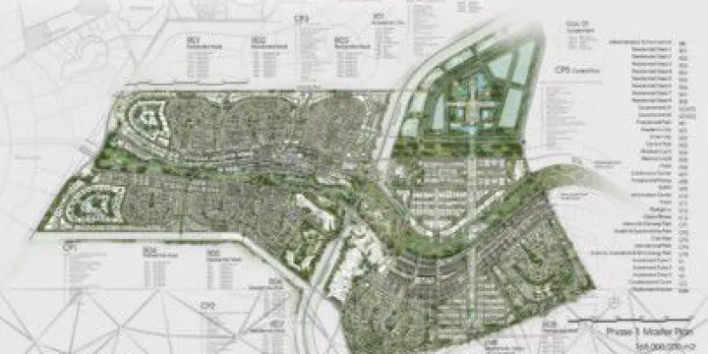
Spaces within Midtown Compound

The compound is built on a space of 53 acres and includes 390 standalone villas, as well as a huge commercial mall on a space of 1500 m2.
80% of the total space has been allocated to green spaces, landscapes, and utilities 20% of the total space has been allocated to residential units and construction.
As for the spaces of residential and commercial units are as follows:
-
The spaces of the apartments range among "90, 135, 180" m
-
Villas spaces start from 300 m2.
-
The commercial units on the ground floor start from 110 m2.
-
Upper floors’ offices and clinics start from 110 m2.
-
Town Middle villas space starts from 200 m2.
-
Townhouses space starting from 300 m2
Show More Than 1000 Twin Houses for sale in New Capital City
Prices and Payment system
Better Home Group offers unparalleled facilities in payment systems and premiums up to seven years without interest.
1- Prices of villas:
-
Prices start at 3,990,000 LE.
-
The prices of the Midtown villas start at 4.990.000 LE.
-
The prices of Twin villas start at 5.490.000 LE.
2 - Prices of apartments:
-
90 m2 apartments, "one-bedroom" prices start from 990.000 LE.
-
135 m2 apartments "2 bedrooms" prices start from 1.490.000 LE.
-
180 m2 apartment "3-bedroom" prices start from 1.990.000 LE.
Your guide to know the top Townhouses for sale in New Capital City
3- commercial units prices:
-
Units’ prices start from 8.950.000 LE.
-
The commercial, administrative units or clinic prices start from 3,950,000 LE.
-
you can pay 300.000 LE as down payment and the rest of the price of the villa is paid through installments over up to 6 years,
-
10% down payment and installments up to 6 years without interest.
All You Need to Know about Cheapest Compounds in New Capital

